Loft a estrenar en Camino Suárez: moderno, acogedor y listo para entrar a vivir
Detalles
-
Dormitorios1
-
Baños1
-
Año de Construcción2026
-
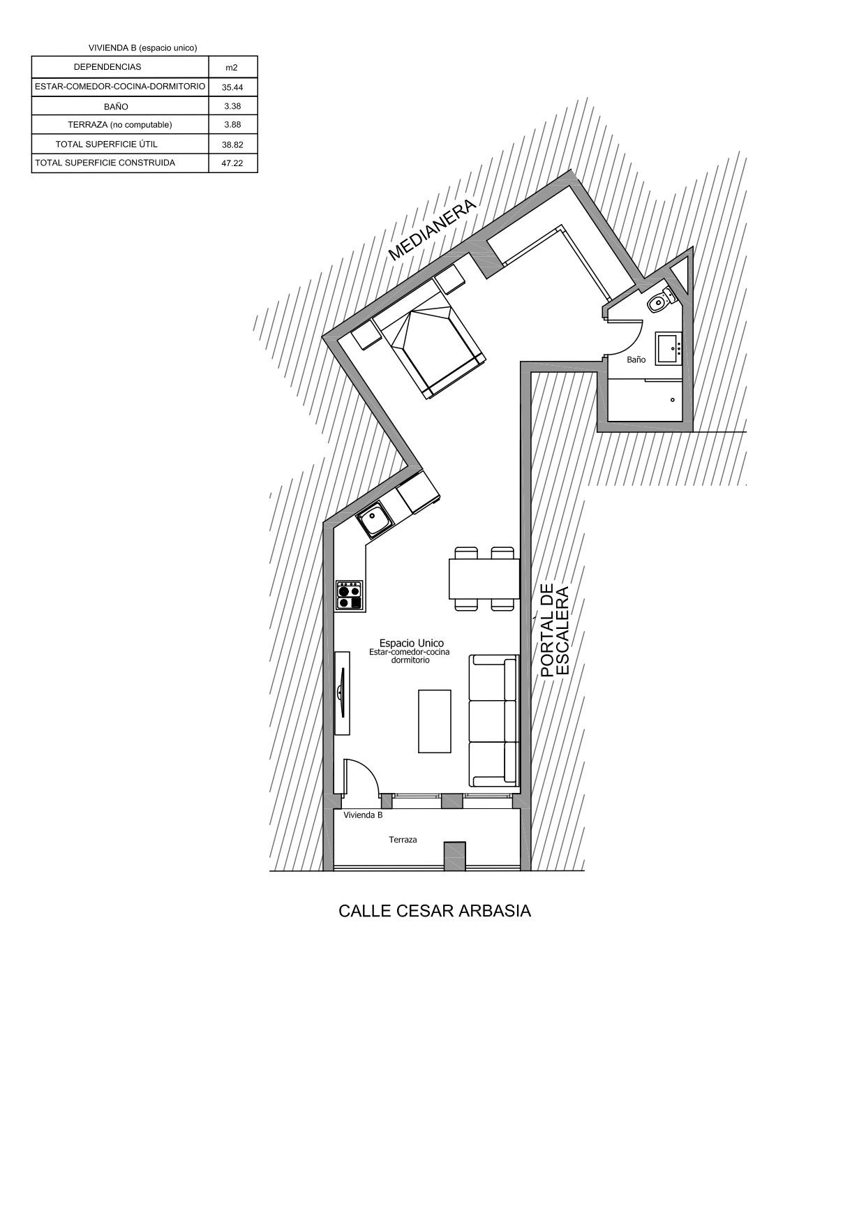
Construidos (m2)47 m2
-
Tipo
Descripción general
Descubre este encantador loft a estrenar en la zona de Camino Suárez, un espacio pensado para quienes buscan comodidad, estilo y un hogar lleno de luz. Cada rincón transmite la sensación de empezar algo nuevo: desde su acogedora habitación, perfecta para descansar y desconectar, hasta su cocina abierta al salón, diseñada para compartir momentos y disfrutar del día a día en un ambiente moderno y funcional.~~El baño, elegante y práctico, completa este hogar donde todo está listo para que simplemente llegues… y empieces a vivir. Su distribución inteligente aprovecha cada metro para ofrecer un espacio acogedor, ideal tanto para vivir como para invertir.~~Un lugar donde cada día puede comenzar con ilusión y terminar con la satisfacción de estar exactamente donde quieres estar.~El inmueble tiene vinculado un trastero inseparable a la vivienda, siendo el desglose del precio de cada una de las partes el siguiente: *loft=> 169.000 € *trastero=>20.000€~No dejes pasar esta oportunidad. Ven a visitarlo y siente por ti mismo todo lo que este loft puede ofrecerte.~ ¡Tu nuevo hogar en Málaga está más cerca de lo que imaginas!~~En cumplimiento de decreto de la Junta de Andalucía 218/2005 de 11 de octubre, se informa al cliente que no están incluidos en el precio los gastos notariales / registrales /itp.~Este anuncio no es vinculante, puede contener errores~En cumplimiento con las obligaciones de información previstas en la Ley 10/2025, de 28 de diciembre de servicios de atención a la clientela y transparencia, así como la normativa sectorial vigente, se hace constar que el precio indicado no incluye los gastos e impuestos inherentes a la adquisición, los cuales se desglosan a continuación:~• Impuesto sobre Transmisiones patrimoniales (ITP): Se aplicará el tipo impositivo vigente en la Comunidad Autónoma de Andalucía de carácter general del 7% (sin perjuicio de los tipos reducidos del 6%, 3,5%, 2% o 1%, aplicables según las circunstancias personales del comprador o de las características del inmueble). En el impuesto que se devenga sobre el valor de Referencia de Catastro o el precio de venta, aquel que resulte superior.~• Gastos de notaría: los honorarios notariales se calcularán conforme al arancel oficial regulado en el Anexo I, del RD 1426/1989, de 17 de noviembre, por el que se aprueba el arancel Notarial.~• Gastos de registro: La inscripción en el Registro de la Propiedad se facturará según el arancel oficial establecido en el ANEXO I, del RD 1427/1989, de 17 de noviembre, por el que se crea el arancel Notarial.~• Gastos de Gestión (Gestoría): Los honorarios por la tramitación administrativa, liquidación de impuestos e inspección registral ascienden a 600 € aproximados (IVA incluido).~• Honorarios Agencia del Vendedor: incluidos en el PVP.~• Honorarios Agencia del comprador: Se informa que eventualmente podrían existir honorarios profesionales a cargo del adquiriente, en aquellos casos, en los que se hubiesen contratado servicios de encargo de compra (PSI), de Personal Shopper Inmobiliario. NO VINCULADOS AL PRECIO DE COMPRA.~Para una información exhaustiva sobre el funcionamiento, tipos impositivos y bonificaciones del ITP en Andalucía, puede consultar el portal oficial de la Agencia Tributaria de la Junta de Andalucía en el siguiente enlace : https://bit.ly/4aj7HdZ
Detalles
-
Nombre o Referencia:ALV003
-
Construidos (m2):47 m2
-
Útiles (m2):40 m2
-
Dormitorios:1
-
Baños:1
-
Precio:169.000€
-
Año de Construcción:2026
-
Estado:
Destacados
- Amueblado
- Armarios Empotrados
- Terraza
- Trastero
Energy
-
Clase Energética:G


